ホーム > 埼玉県の貸し倉庫 > 戸田・川口エリアの貸し倉庫 > 埼玉県戸田市美女木4丁目の貸し倉庫・工場 (52.90坪)
賃貸条件
| 賃料 | 350,000円(税別) |
|---|---|
| 坪単価 | 6,617円 |
| 敷金(保証金) | 3ヶ月 |
| 礼金 | 1ヶ月 |
| 使用開始日 | 即日 |
物件概要
| 物件所在地 | 埼玉県戸田市美女木4丁目 |
|---|---|
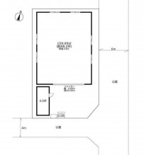
| 建物床面積 | 52.90坪(174.88m2) |
| 敷地面積 | - |
| 建物面積内訳 |
倉庫:48.2坪 事務所:4.7坪 |
| 建物構造 |
鉄骨造 |
| 軒高 | 4.80m |
| 用途地域 | - |
| 前面道路幅員 | 6.00m |
| 建物階数 |
平家建 |
| 備考 | トイレ有 クレーン有 |
周辺地図
※周辺地図ですので、実際の所在地とは異なる場合がございます。


