ホーム > 埼玉県の貸し倉庫 > さいたま市エリアの貸し倉庫 > 埼玉県さいたま市緑区馬場1丁目の貸し倉庫・工場 (105.99坪)
賃貸条件
| 賃料 | 380,000円(税別) |
|---|---|
| 坪単価 | 3,586円 |
| 敷金(保証金) | 2ヶ月 |
| 礼金 | 1ヶ月 |
| 使用開始日 | 相談 |
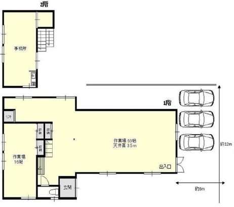
物件概要
| 物件所在地 | 埼玉県さいたま市緑区馬場1丁目 |
|---|---|
| 建物床面積 | 105.99坪(350.38m2) |
| 敷地面積 | - |
| 建物面積内訳 |
倉庫:105.99坪 |
| 建物構造 |
木造 |
| 軒高 | 3.54m |
| 用途地域 | 市街化調整区域 |
| 前面道路幅員 | 6.00m |
| 建物階数 |
4階建 |
| 備考 | 倉庫・作業所・住居付 |
周辺地図
※周辺地図ですので、実際の所在地とは異なる場合がございます。


