ホーム > 東京都の貸し倉庫 > 江戸川・江東・足立・台東・葛飾エリアの貸し倉庫 > 東京都葛飾区東新小岩2丁目の貸し倉庫・工場 (128.37坪)
賃貸条件
| 賃料 | 500,000円(税別) |
|---|---|
| 坪単価 | 3,895円 |
| 敷金(保証金) | 3ヶ月 |
| 礼金 | 2ヶ月 |
| 使用開始日 |
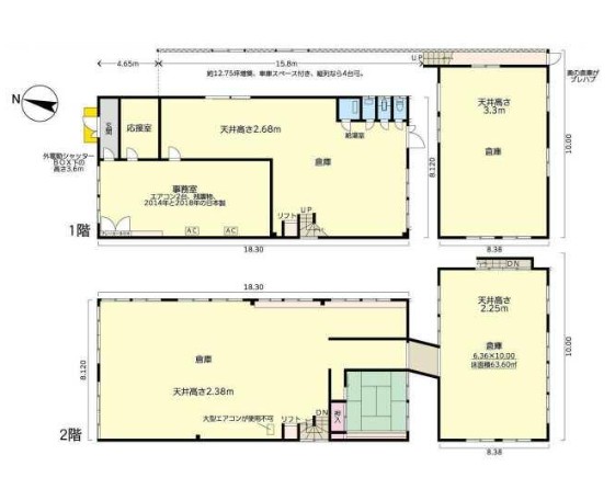
物件概要
| 物件所在地 | 東京都葛飾区東新小岩2丁目 |
|---|---|
| 建物床面積 | 128.37坪(424.36m2) |
| 敷地面積 | 99.99坪(330.55m2) |
| 建物面積内訳 |
倉庫:128.37 |
| 建物構造 |
鉄骨造 |
| 軒高 | 2.50m |
| 用途地域 | 準工業地域 |
| 前面道路幅員 | - |
| 建物階数 |
2階建 |
| 備考 | 駐車スペース3台以上有り |
周辺地図
※周辺地図ですので、実際の所在地とは異なる場合がございます。


