ホーム > 東京都の貸し倉庫 > 武蔵村山・東久留米・清瀬エリアの貸し倉庫 > 東京都東村山市恩多町5丁目の貸し倉庫・工場 (445.68坪)
賃貸条件
| 賃料 | 1,916,423円(税別) |
|---|---|
| 坪単価 | 4,300円 |
| 敷金(保証金) | 4ヶ月 |
| 礼金 | 1ヶ月 |
| 使用開始日 | 即日 |
物件概要
| 物件所在地 | 東京都東村山市恩多町5丁目 |
|---|---|
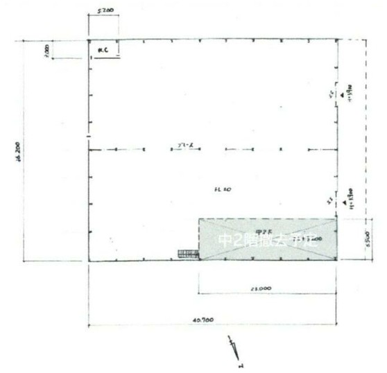
| 建物床面積 | 445.68坪(1,473.32m2) |
| 敷地面積 | - |
| 建物面積内訳 |
倉庫:445.68坪 |
| 建物構造 |
鉄骨造 |
| 軒高 | 5.40m |
| 用途地域 | 準工業地域 |
| 前面道路幅員 | - |
| 建物階数 |
平家建 |
| 備考 | シャッター高さ3.9m |
周辺地図
※周辺地図ですので、実際の所在地とは異なる場合がございます。


