ホーム > 東京都の貸し倉庫 > 八王子・日野・立川エリアの貸し倉庫 > 東京都日野市新町5丁目の貸し倉庫・工場 (2595.00坪)
賃貸条件
| 賃料 | 15,570,000円(税別) |
|---|---|
| 坪単価 | 6,000円 |
| 敷金(保証金) | 6ヶ月 |
| 礼金 | 1ヶ月 |
| 使用開始日 | 相談 |
物件概要
| 物件所在地 | 東京都日野市新町5丁目 |
|---|---|
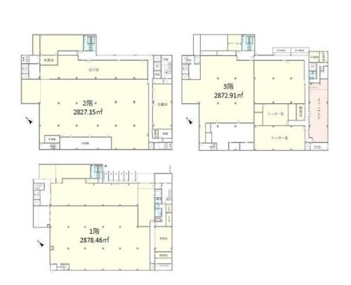
| 建物床面積 | 2595.00坪(8,578.53m2) |
| 敷地面積 | - |
| 建物面積内訳 |
倉庫:2595坪 |
| 建物構造 |
鉄骨造 |
| 軒高 | - |
| 用途地域 | 工業地域 |
| 前面道路幅員 | - |
| 建物階数 |
3階建 |
| 備考 | 多摩工業団地 |
周辺地図
※周辺地図ですので、実際の所在地とは異なる場合がございます。


