ホーム > 東京都の貸し倉庫 > 八王子・日野・立川エリアの貸し倉庫 > 東京都立川市栄町6丁目の貸し倉庫・工場 (9999.99坪)
賃貸条件
| 賃料 | 18,000,000円(税別) |
|---|---|
| 坪単価 | 1,801円 |
| 敷金(保証金) | 12ヶ月 |
| 礼金 | -ヶ月 |
| 使用開始日 |
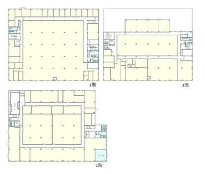
物件概要
| 物件所在地 | 東京都立川市栄町6丁目 |
|---|---|
| 建物床面積 | 9999.99坪(33,057.87m2) |
| 敷地面積 | - |
| 建物面積内訳 |
倉庫:275956坪 |
| 建物構造 |
鉄骨造 |
| 軒高 | 2.70m |
| 用途地域 | - |
| 前面道路幅員 | - |
| 建物階数 |
3階建 |
| 備考 | 3階建て3階部分 駐車場37台 24時間使用可 エレベーター1基 |
周辺地図
※周辺地図ですので、実際の所在地とは異なる場合がございます。


