賃貸条件
| 賃料 | 454,545円(税別) |
|---|---|
| 坪単価 | 6,213円 |
| 敷金(保証金) | 3ヶ月 |
| 礼金 | 1ヶ月 |
| 使用開始日 | 2026年04月 上旬 |
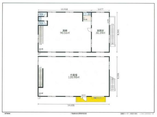
物件概要
| 物件所在地 | 神奈川県平塚市南原4丁目 |
|---|---|
| 建物床面積 | 73.17坪(241.88m2) |
| 敷地面積 | - |
| 建物面積内訳 |
倉庫:73.17坪 |
| 建物構造 |
鉄骨造 |
| 軒高 | - |
| 用途地域 | 第一種中高層住居専用地域 |
| 前面道路幅員 | 5.00m |
| 建物階数 |
2階建 |
| 備考 | 駐車場3台以上 トイレ2か所 |
周辺地図
※周辺地図ですので、実際の所在地とは異なる場合がございます。


