ホーム > 千葉県の貸し倉庫 > 千葉市全域・四街道エリアの貸し倉庫 > 千葉県千葉市若葉区みつわ台1丁目の貸し倉庫・工場 (798.16坪)
賃貸条件
| 賃料 | 2,500,000円(税別) |
|---|---|
| 坪単価 | 3,133円 |
| 敷金(保証金) | 6ヶ月 |
| 礼金 | 1ヶ月 |
| 使用開始日 | 相談 |
物件概要
| 物件所在地 | 千葉県千葉市若葉区みつわ台1丁目 |
|---|---|
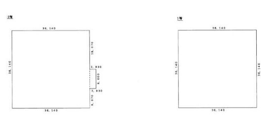
| 建物床面積 | 798.16坪(2,638.55m2) |
| 敷地面積 | - |
| 建物面積内訳 |
倉庫:798.16坪 |
| 建物構造 |
鉄骨造 |
| 軒高 | - |
| 用途地域 | - |
| 前面道路幅員 | - |
| 建物階数 |
2階建 |
| 備考 | 男女別トイレ |
周辺地図
※周辺地図ですので、実際の所在地とは異なる場合がございます。


